Продажа 2х-комнатной квартиры
Ленинградская область, Выборг г., Ленина просп., д 9
- 47 м²
- Площадь
- 28.6 м²
- Жилая площадь
- 7.5 м²
- Площадь кухни
- 3/5
- Этаж
6 800 000 ₽
145 923 ₽ за м²
ID объявления 12172767
Поделиться
Добавить в избранное
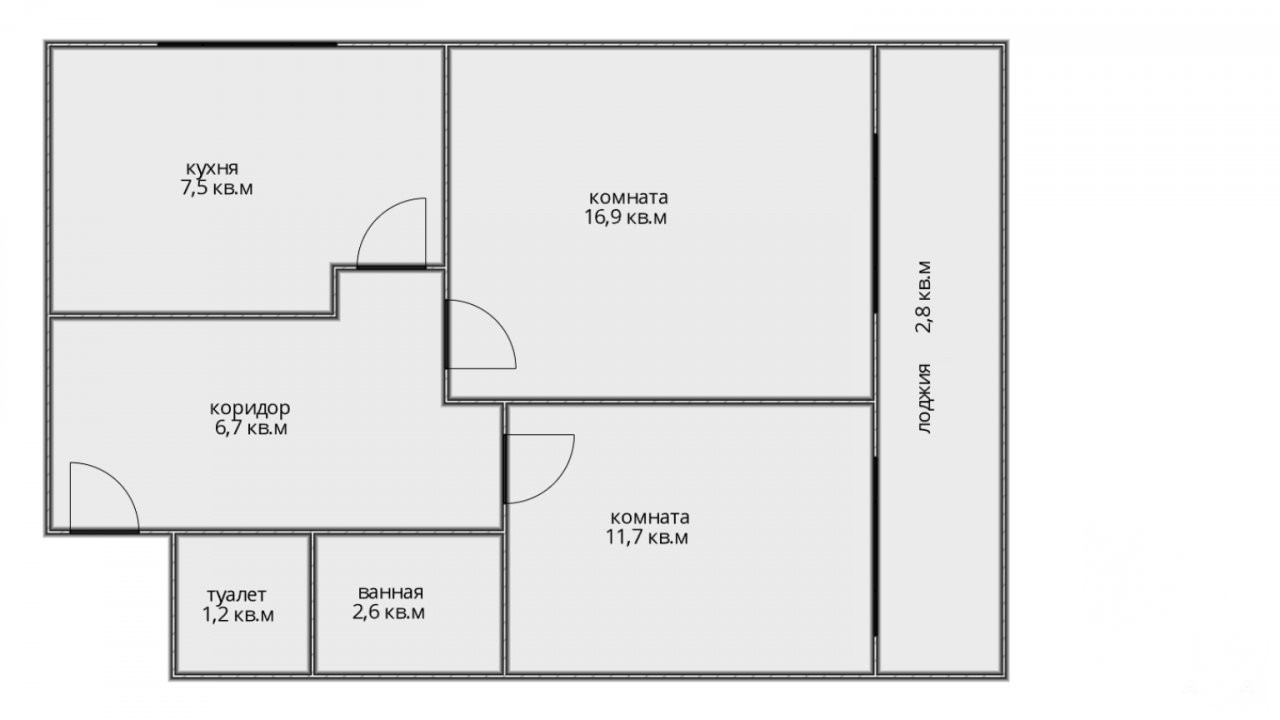
№341633 Двухкомнатная квартира в центральной части Выборга, пр. Ленина 9, удобный третий этаж пятиэтажного кирпичного дома, 1981 года постройки.
Общая площадь квартиры 46, 6 кв.м, комнаты изолированные 11, 7 кв.м + 16, 9 кв.м, кухня 7, 5 кв.м, вместительная прихожая, санузел раздельный, просторная лоджия с видом на зеленый сквер (не входит в площадь квартиры).
Центральное водоснабжение, установлены стеклопакеты, за счет толстых кирпичных стен отличная звуко и теплоизоляция, квартира требует ремонта - для вас это прекрасная возможность реализовать свой творческий потенциал.
Чистый ухоженный подъезд, адекватные соседи, на первом этаже при входе достаточно места для хранения колясок и велосипедов.
Во дворе оборудована детская площадка, через дорогу благоустроенный городской парк, до Красной площади чуть больше двухсот метров, недалеко набережная залива с красивыми видами, возможности для интересного времяпровождения.
Вся инфраструктура города в пешей доступности, включая исторические памятники архитектуры, парки, кафе, магазины, банки, аптеки, гимназии, школы, детские сады.
Данный вариант отлично подойдет, как для семьи с детьми и пожилых людей, так и для дальнейшей сдачи в найм.
Выборг является важнейшим культурным и туристическим центром, в связи с этим арендный бизнес очень востребован.
Квартира без обременений и долгов, все виды расчетов, прямая продажа, быстрый выход на сделку, полное сопровождение и консультирование на всех этапах.
Дополнительная информация по запросу, звоните и записывайтесь на просмотр.
Дата обновления: 27 октября 2025